top of page

128 Beverley Glen Blvd

vaughan

Video

3D

Photos

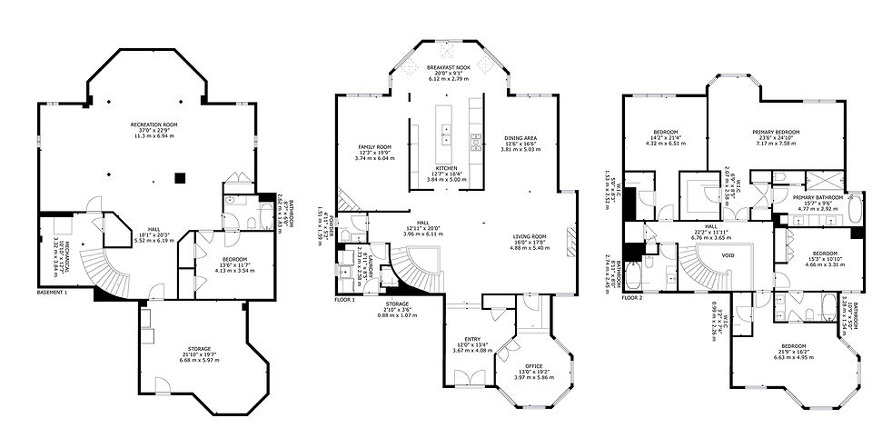
​Floor Plan

128 Beverley Glen Blvd, Vaughan ON, CA.jpg

map

bottom of page